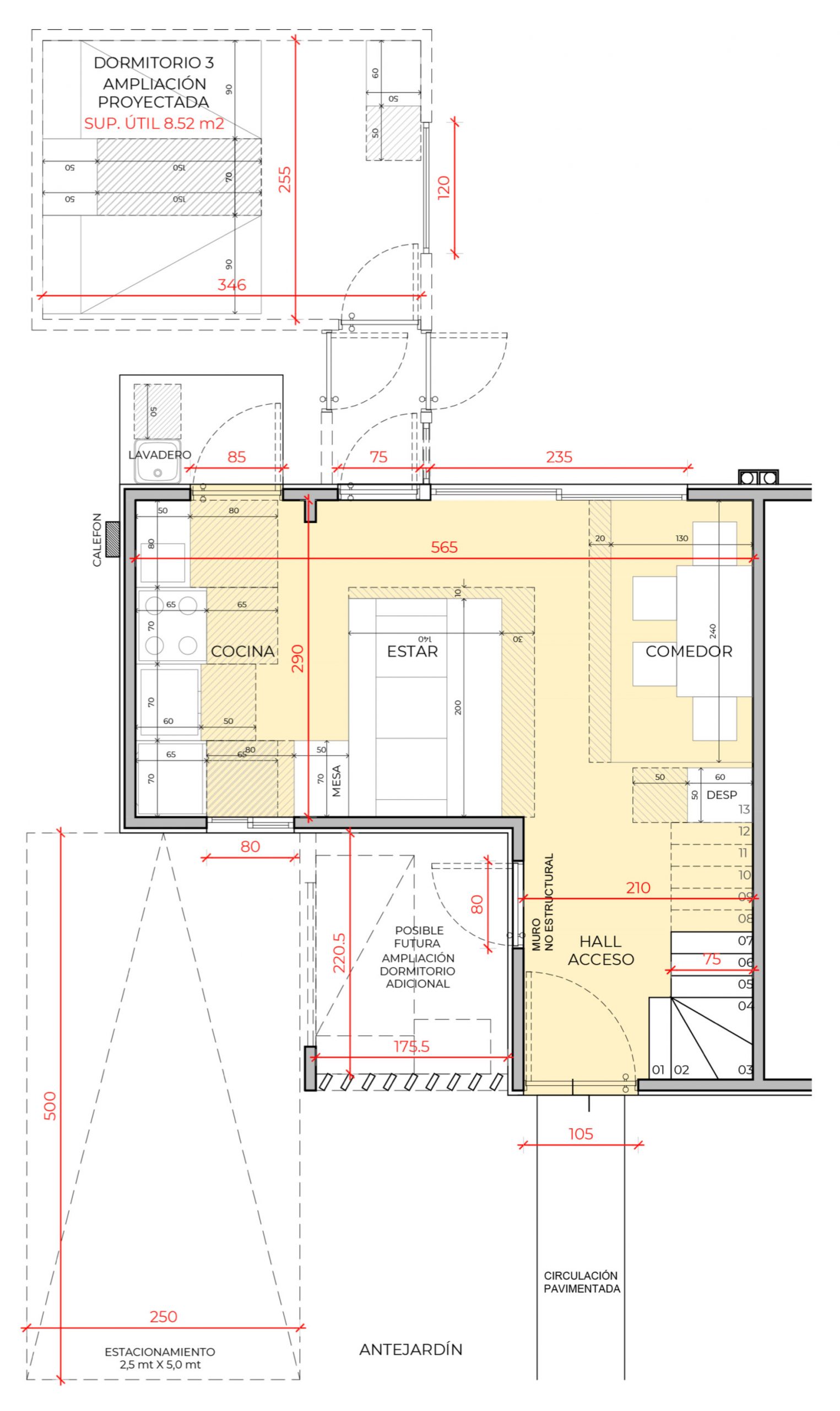
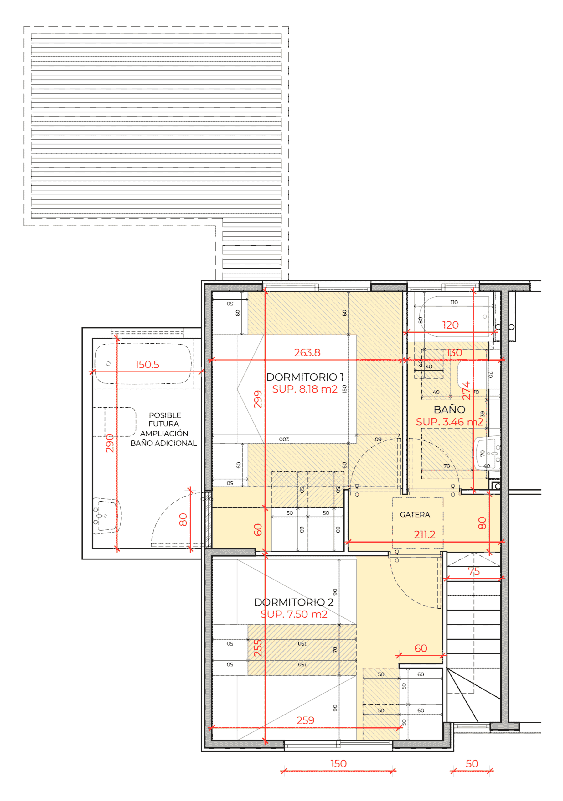
Estructura
- Muros perimetrales de hormigón armado en todos los pisos
- Losas de hormigón armado en todos los pisos.
- Tabiquería interior de estructura Metalcon.
- Escalera de madera barnizada.
Aislación
- Aislación de muros exteriores con sistema EIFS.
- Aislante térmico en techumbre con lana de vidrio.
Pavimentos
- Cerámica de piso en baño y cocina.
- Todos los pavimentos en radier o losa afinado excepto donde se indica terminación cerámica.
- Ruta pavimentada de acceso a vivienda.
Otros
- Cierro hacia calle de acceso en perfilería metálica.
- Cierro tipo bulldog hacia vecinos.

